
Để biết thêm thông tin chi tiết, Quý khách vui lòng để lại thông tin, chúng tôi sẽ liên lạc sớm nhất.

The One Complex là dự án căn hộ cao cấp, tọa lạc tại số 1 Định Công, phường Thịnh Liệt, quận Hoàng Mai. Dự án do liên danh Công ty CP Dịch vụ Vận tải Đường sắt và Công ty CP Đầu tư Xây dựng & Phát triển Kiến trúc Hà Nội làm chủ đầu tư. Mục tiêu rõ ràng: mang lại không gian sống chất lượng, an toàn và tiện nghi cho cư dân. Bài viết này tập trung những thông tin thiết yếu để bạn nắm nhanh cơ hội sở hữu hoặc đầu tư tại The One Complex.
The One Complex phát triển trên nền tảng pháp lý minh bạch và thiết kế thực dụng. Dự án có quy mô: 11 tầng nổi và 2 tầng hầm. Giấy phép xây dựng phần ngầm là Số 26/GPXD, cấp bởi Sở Xây dựng Hà Nội ngày 11/04/2025. Đơn vị tư vấn giám sát là Công ty CP Tư vấn Kiến trúc – Xây dựng Lạc Việt. Nhà thầu thi công: Công ty CP Xây dựng & Xử lý Nền móng Công trình.
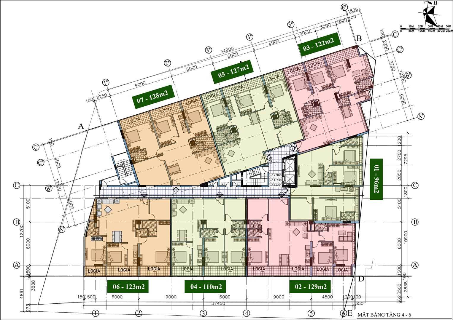
Diện tích căn hộ đa dạng. Mục tiêu phục vụ cả nhu cầu an cư và đầu tư. Thời gian bàn giao dự kiến: Quý IV/2027. Pháp lý: sổ hồng lâu dài.
📥 Nhận bảng giá & hồ sơ pháp lý The One Complex

👉 TẢI TRỌN BỘ TÀI LIỆU DỰ ÁN THÁNG 11.2025- CLICK 📂
The One Complex nằm ở vị trí chiến lược. Đây là cửa ngõ phía Nam của Hà Nội. Vị trí mang lợi thế di chuyển và tiện ích xung quanh.
Vị trí còn thuận lợi cho thuê. Nguồn cầu thuê cao do gần khu y tế, giáo dục và khu hành chính. Giao thông thuận lợi giúp cư dân dễ đi lại. Đây là điểm cộng lớn cho cả cuộc sống và đầu tư.
🚀 Đăng ký tham quan thực địa — The One Complex

The One Complex được phát triển với hệ tiện ích phục vụ mọi lứa tuổi. Chủ đầu tư thiết kế tiện ích để cư dân cảm thấy thuận tiện mỗi ngày.
Về tiện ích ngoại khu, cư dân dễ dàng tiếp cận bệnh viện, trường học, trung tâm thương mại lớn và các khu dịch vụ. Vị trí gần các điểm trọng yếu tạo thêm lợi ích cho cuộc sống hàng ngày và giá trị cho thuê.
📁 Tải brochure tiện ích & mặt bằng
Thiết kế The One Complex ưu tiên công năng và ánh sáng. Mỗi căn bố trí hợp lý. Cửa sổ lớn đón nắng. Không gian mở giúp cảm giác rộng rãi.
Diện tích căn hộ phổ biến: 96 – 156 m². Phân bổ chính gồm:
Hai phương án bàn giao: bàn giao nội thất cơ bản hoặc bàn giao thô. Việc này giúp khách hàng dễ lựa chọn theo nhu cầu tài chính và phong cách cá nhân.





💎 Nhận mặt bằng chi tiết & bản vẽ căn hộ
👉 TẢI TRỌN BỘ TÀI LIỆU DỰ ÁN THÁNG 11.2025- CLICK 📂
Chủ đầu tư hợp tác cùng những đơn vị tư vấn và thi công uy tín. Tiêu chí rõ ràng: độ bền cao. Vật liệu được kiểm định. Hệ thống hạ tầng ngầm tuân thủ giấy phép và tiêu chuẩn kỹ thuật.
Thiết kế tối giản. Tập trung vào công năng. Các chi tiết hoàn thiện hướng đến trải nghiệm sử dụng lâu dài. Hệ thống an ninh, cấp thoát nước và phòng cháy chữa cháy được lắp đặt theo tiêu chuẩn.
Giá tham khảo dự kiến: từ 6x – 7x triệu đồng/m². Mức giá thay đổi theo vị trí tầng, diện tích và hình thức bàn giao.
Chủ đầu tư áp dụng nhiều ưu đãi để thúc đẩy đặt cọc sớm. Các chính sách phổ biến gồm:
Lưu ý: các ưu đãi có thể điều chỉnh theo thời điểm. Trước khi quyết định, bạn nên yêu cầu hợp đồng mẫu và bảng tổng chi phí rõ ràng. Kiểm tra các khoản phí khác như phí bảo trì, phí quản lý tòa nhà và chi phí liên quan.
📥 Yêu cầu báo giá chi tiết & phương án tài chính
Tiến độ dự án công bố: đã hoàn thành phần hầm. Nhà thầu đang thi công phần thân và hoàn thiện. Thời gian bàn giao dự kiến: Quý IV/2027. Đây là mốc quan trọng khách hàng cần lưu ý khi ký hợp đồng theo tiến độ.
Khi mua từ sớm, khách hàng cần theo dõi các mốc nghiệm thu, biên bản bàn giao từng hạng mục và cam kết của chủ đầu tư về chất lượng. Việc kiểm tra thực địa trước khi ký quyết toán sẽ giúp giảm rủi ro phát sinh.
🚀 Đăng ký nhận cập nhật tiến độ & ảnh thực tế
The One Complex có giấy phép xây dựng cho phần ngầm (Số 26/GPXD). Pháp lý dự án hướng tới sổ hồng lâu dài cho từng căn. Đây là điểm cộng lớn so với nhiều dự án vẫn còn tranh chấp pháp lý.
Khuyến nghị dành cho người mua:
Một hợp đồng minh bạch giảm thiểu rủi ro cho cả người mua ở thực và nhà đầu tư lướt sóng.
📁 Nhận checklist pháp lý & hợp đồng mẫu
Dưới đây là các lý do khiến dự án đáng xem xét, cả cho an cư lẫn đầu tư.
Tuy nhiên, cần lưu ý yếu tố thời gian bàn giao. Người mua theo tiến độ cần chuẩn bị tài chính và giám sát chặt chẽ các mốc thanh toán.
📥 Nhận phân tích đầu tư & dự báo giá cho The One Complex
Trong khu vực Hoàng Mai có nhiều dự án tầm trung đến cao cấp. Điểm khác biệt của The One Complex nằm ở vị trí gần cụm y tế và giáo dục, cùng thiết kế căn hộ diện tích lớn hơn mức trung bình. Điều này tăng ưu thế so với căn hộ nhỏ nếu mục tiêu là cho thuê gia đình hoặc chuyên gia.
So sánh ngắn:
Trước khi ký hợp đồng, khách hàng nên:
Một lần kiểm tra kỹ sẽ giúp bạn hạn chế rủi ro và tối ưu chi phí sau mua.
Bạn quan tâm The One Complex? Để nhận bảng giá cập nhật, mặt bằng chi tiết, hợp đồng mẫu và lịch tham quan, hãy để lại thông tin. Chúng tôi sẽ liên hệ trong thời gian sớm nhất.
Nếu cần gửi yêu cầu hồ sơ hoặc đặt lịch xem nhà mẫu, để lại thông tin qua form hoặc liên hệ trực tiếp với đội tư vấn. Chúng tôi sẽ hỗ trợ bạn kiểm tra pháp lý, tính toán phương án vay và so sánh lợi nhuận cho thuê.
📥 Yêu cầu gọi lại & tư vấn miễn phí
Để biết thêm thông tin chi tiết, Quý khách vui lòng để lại thông tin, chúng tôi sẽ liên lạc sớm nhất.
*Chúng tôi cam kết Thông tin của Quý Khách luôn được bảo mật tuyệt đối.
Tài liệu, bảng giá cập nhật mới nhất hôm nay
Toàn bộ tài liệu sẽ được gửi qua Email và Zalo vừa đăng ký, Anh Chị vui lòng đợi ít phút và check email anh chị nhé!
*Chúng tôi cam kết Thông tin của Quý Khách luôn được bảo mật tuyệt đối.